Вишневый сад

8 000 000
P
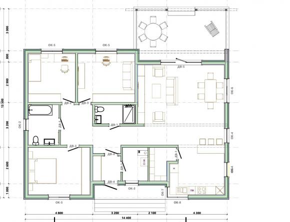
Площадь дома: 163 кв.м.
Этажей: 1
Количество спален: 3

Заинтересовало предложение? Задайте свой вопрос и наш менеджер свяжется с вами


Описание проекта

Дом по каркасной финской технологии с перекрёстным утеплением в 200мм. Каркас из сухой строганной доски, базальтовый утеплитель, каркас изолирован и проклеен парозащитной изоляцией и диффузионной мембраной. Кровельный материал металлочерепица матовая. Фундамент: утеплённая бетонная плита 200мм залитая поверх утеплённого ленточного фундамента. Отопление комбинированное: водяной тёплый пол + батареи. Внутренняя отделка имитацией бруса 135мм окрашенные финским маслом, тканевые натяжные потолки. Комбинированное напольное покрытие.
: керамогранит, кварцвинил. Внешняя отделка комбинированная: японские фасадные панели + планкен из лиственницы. Планировка: 3 спальни, 2 сан узла, котельная, кухня-гостиная, кладовка для продуктов и веранда.

Комплектация проекта