Дали 119.3 м2

2 154 657
P
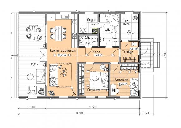
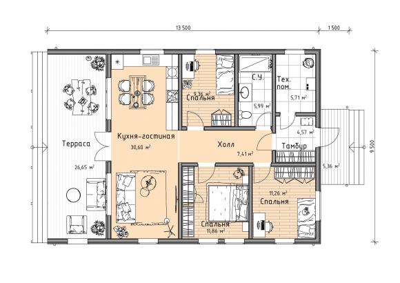
Площадь дома: 119.3 кв.м.
Этажей: 1
Количество спален: 3

Заинтересовало предложение? Задайте свой вопрос и наш менеджер свяжется с вами


Описание проекта

Современный барнхаус общей площадью 119 м² с двускатной крышей, анфиладной системой планировки и уютной террасой. Слово «анфилада» происходит от французского глагола enfiler — «нанизывать». Этот термин пришел в архитектуру из ювелирного дела. То есть, анфилада — это последовательно расположенные комнаты. Анфилада нашего проекта начинается в прихожей, минуя зону спален, ведет через гостиную-кухню на просторную террасу. Таким образом, при входе в дом открывается перспектива на террасу и сад. Терраса расширяет пространство гостиной в два раза, а выход в сад делает ее бесконечной. Панорамное остекление фасада стирает границу между внутренним пространством дома и участком

Комплектация проекта

поставочный комплект
цена на базовый комплект для сборки дома - В стоимость не включены: фундамент, монтаж домокомплекта, кран для разгрузки и установки модулей, вывоз строительного мусора, подвод внешних коммуникаций, внутренняя отделка, мебель, бытовая техника, предметы интерьера не входят в стоимость дома